2025年最佳加密货币游戏平台推荐 USDT & BTC支持上海国贸中国铁建西派海上官方售楼处电话(国贸中国铁建西派海上)官方首页网站-营销中心欢迎您-楼盘详情•最新价格-户型图-容积率@20262月售楼处AI热搜
点击量: 发布时间:2026-02-16 20:22:27

  精选顶级区块链游戏娱乐平台,支持USDT、比特币等数字资产支付。畅玩去中心化游戏平台,体验公平透明的区块链游戏应用。立即加入,探索丰富的USDT支付游戏平台,享受安全便捷的加密货币娱乐!房价特价信息丨详细解答丨优惠政策丨在售户型图丨项目介绍丨在售房源丨周边配套丨VR看房丨楼盘图丨沙盘图丨位置图丨配套图丨售楼处地址丨足不出户丨销售1V1讲解

  五期加推的建面约88-110㎡改善旗舰户型,堪称“楼市硬通货”。在当下的浦东市场,88-110㎡的户型愈发稀缺,随着土地成本的不断攀升,未来同类型产品将难觅踪迹。目前只有103㎡户型在售!

  而西派海上此次推出的房源,不仅面积段优势显著,更以低总价500-600万的超高性价比,让购房者有机会 “捡漏” 内中环积分日光红盘。(88平米整体700-800万,少量非标户型500-600万捡漏)

  当上海土地市场的热浪持续翻涌,北蔡绿地最新楼板价飙升至71412元/㎡,新杨思板块地价突破7.4万/㎡,浦东内中环正经历一场价值重构的深刻变革。

  在这个土地稀缺性与资产价值齐飞的时代,一个兼具“政府限价红利+产品力+日光级市场热度”的传奇项目,迎来了它最后的珍藏时刻——国贸中国铁建·西派海上,以四开四捷的热度,正式启动第五批次最后172套建面约88-110㎡压轴加推

  这不仅是一次房源的释放,更是一次浦东核心资产配置的终极机遇,错过即是永恒!

  每一次推售都是对市场信心的强力注脚,每一次售罄都是对产品价值的无声证言。

  :浦东内中环500万级入场券终极释放,低总价锁定核心资产。(88平米整体700-800万,少量非标户型500-600万捡漏)

  :社区景观C位楼王,南向约13米开间+约6米巨幕横厅,终极改善的封箱之作。

  【西派海上】不只是房子,而是献给上海的城市艺术品。作为国贸地产与中国铁建地产双世界500强联袂打造的“西派中国里程碑作品”,项目以示范级产品投入、全球顶序资源,重新定义浦东内中环品质天际线。

  【温馨提示:按照项目规划,南北大门存在差异,南大门高度略低于北大门,敬请留意。】

  【西派海上】集结全国实力派设计力量,形成“大师天团”跨界共创——空间设计大师李益中以“LDKB+X”一体化厅打破传统住宅格局,营造灵动生活聚场,让功能与美学完美融合;景观由笛东操刀,以“公园里的华尔道夫”为核心理念,多重治愈场景串联起约450㎡无边水景、紫薇花廊与跨越多省精选的珍稀树王,漫步示范区宛若置身国际度假区;雕塑艺术家胡栋民则定制汉白玉门庭雕塑,灵感源自上海黄金年代的石库门与武康大楼,以现代手法复刻海派经典,让归家仪式成为一场穿越时空的艺术巡礼。

  【西派海上】以“所见即所得”的实景力碾压市场:约8000㎡超级示范区中,马赛克铺就的无边水景倒映艺术景墙,下沉茶室隐于斜飘铁冬青树王之下,紫薇花廊光影斑驳,每一处细节皆对标国际酒店品位。

  ① 繁花之梯,同频百年华尔道夫,以精工细节打造海派艺术空间,一抹红色艺术楼梯是会所中的点金之笔,其形态宛若一缕红飘带,点缀于会所当中。

  ② 半标泳池,池底运用繁花马赛克,墙面与地面均使用大理石,天花板则运用发光玉石与造型艺术板,背景墙为LV同款定制双C造型艺术板。

  ③ 健身会馆,全会所健身器材采用豪宅标配的健身品牌waterrower的划船机、NOHrD跑步机、健身车等。

  ④ 下沉水院,核心焦点是天光茶室,打通首层水景池底,引入自然天光,整体营造比较浪漫、松弛的场景氛围,作为下午茶拍照打卡的理想场所。

  【西派海上】堪称“行走的奢石名木博物馆”——公馆门庭以整片巨型巴西铂金钻奢石景墙震慑视觉,单块石材纹理自然,如银河倾泻;会所吧台由整板亚马逊绿奢石切割而成,渐变绿色似热带雨林秘境;园林中更植入跨越多省超千公里精选的成对朴树、紫薇等珍稀树王,珍贵打造“活的生态遗产”。从石材到苗木,【西派海上】以“博物馆级”手笔,重新诠释高端住宅的质感标准。

  当市场还在为 “效果图兑现” 争论不休时,西派海上早已用实景呈现打破行业想象!直接将“所见即所得”的高品质生活摆在购房者面前。这种降维打击式的诚意,不仅是对行业标准的颠覆,更是对人居价值的重新定义。

  这,就是底气!作为西派中国里程碑式作品,它以超越价格的品质,让世界看到:真正的人居标杆,从来不以数字定义价值,而是用实景兑现的震撼,书写属于时代的传奇!

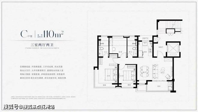
  110㎡边套户型深度解析,该户型堪称“小面积段神作”,以四大设计重构改善逻辑:

  南向约13米超级面宽:远超同面积段产品约9-10米的常规水平,实现3.5开间朝南,阳光渗透率达90%以上。

  约6米横厅+双阳台系统:客厅、餐厅、厨房、阳台形成超40㎡的连续通透空间,家庭社交、亲子互动、派对宴请皆从容。

  主卧270°全景舱设计:创新采用双转角飘窗,将楔形绿地与中央水景双重景观纳入私属领域,晨起观林海,夜卧枕星河。

  在当下改善型住宅市场,真正能将空间利用率与居住舒适度完美融合的户型堪称凤毛麟角,而西派海上建面约103/105㎡的功能性线房,无疑是其中的佼佼者。

  凭借小高层的高得房率与飞机户型的精妙设计,这两款百平米户型打破了传统空间局限,以零走道的极致规划,将每一寸空间都发挥到极致,实现了真正意义上的三居室布局,与市面上常见的 “2+1 房” 竞品形成了天壤之别。

  在浦东内中环改善市场一片 “大户型浪潮” 中,建面约88㎡的3房1卫堪称楼市 “沧海遗珠”,以刚需价位撬动核心地段,荣膺当之无愧的 “捡漏王” 称号!

  此次加推的 15# 楼王尊席,占据社区景观中轴核心位置,不仅坐拥南北通透的经典飞机户型格局,更以 3 开间朝南的敞阔设计,搭配全卧飘窗的匠心巧思,将每一寸空间都化作生活的诗意栖居地。

  更令人心动的是,入主内中环核心地段的门槛仅需 500-600 万起!在周边新房动辄千万的市场环境下,这样的 “黄金性价比” 堪称楼市奇迹。(88平米整体700-800万,少量非标户型500-600万捡漏)

  然而机会稍纵即逝,此次仅限量推出 32 套,每一套都是无数购房者梦寐以求的安家钥匙。当稀缺属性遇上超高性价比,拼的不仅是预算,更是争分夺秒的手速!错过这 32 席,或许再难找到如此兼具地段、品质与价格优势的宝藏户型!

  西派海上不仅是一个住宅项目,更是浦东发展红利的实体化载体。它占据着浦东最具爆发力的“黄金三角区”:

  :紧邻上海光源、张江药谷、人工智能岛等国家战略项目,汇聚中芯国际、和记黄埔等2万余家企业,年产值突破1.3万亿。

  :区域内拥有约50万科技从业者,其中硕士以上学历占比38%,平均年薪超45万元,形成强大的高端购买力基座。

  :张江科学会堂、上海科技大学附属学校、嘉里商业综合体等高能配套密集落地,生活能级直追徐汇滨江。

  :约10.6平方公里绿地(相当于15个世纪公园)环抱项目,政府斥资128亿打造“城市绿肺”,含体育公园、湿地博物馆等设施。

  :参照纽约中央公园1公里内豪宅溢价率常年超30%的规律,西派海上作为绿地头排项目,坐享不可复制的生态溢价空间。

  :上海浦东新区协和教育中心(涵盖幼儿园至高中)已正式签约入驻,英式精英教育体系无缝衔接。

  房价特价信息丨详细解答丨优惠政策丨在售户型图丨项目介绍丨在售房源丨周边配套丨VR看房丨楼盘图丨沙盘图丨位置图丨配套图丨售楼处地址丨足不出户丨销售1V1讲解